Inwentaryzacje zieleni i rewaloryzacja parków oraz alei pomnikowych
Prace rewaloryzacyjne dotyczą doprowadzenia zabytku ogrodowego do postaci ujawniającej jego estetyczne i historyczne wartości przy pełnym poszanowaniu substancji zabytkowej i elementów stanowiących autentyczne dokumenty przeszłości. Rewaloryzacja parku jest procesem złożonym, przebiegającym na przestrzeni wielu lat. Powinna opierać się na analizie ekologicznej całego zespołu zabytkowego i założenia ogrodowego, z uwzględnieniem pierwotnej roli otaczającego krajobrazu oraz analizy aktualnego układu przestrzenno-kompozycyjnego. Dla prawidłowego przeprowadzenia rewaloryzacji parku konieczne jest wykonanie określonych działań w należytej kolejności. Należy przeprowadzić pełną inwentaryzację ukształtowania terenu (podkład geodezyjny), inwentaryzację zieleni z oznaczeniem gatunków oraz budowli z podaniem stylu i czasu ich powstania. Wskazane jest też wykonanie waloryzacji, która powinna objąć: statygrafię drzew i krzewów (ze wskazaniem ich wartości wynikającej z wieku, gatunku i stanu zachowania), dane historyczne dotyczące faz rozwojowych kompozycji oraz jej elementów (budowle, mała architektura), a także studium kompozycji ogrodu w stanie istniejącym z określeniem zachowanych wnętrz, starych planów i ich elementów.
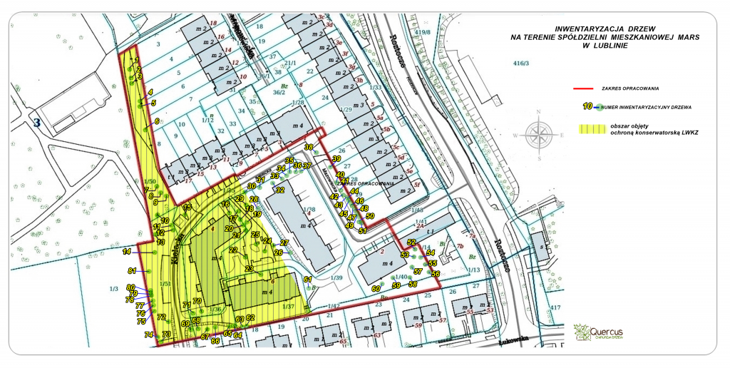
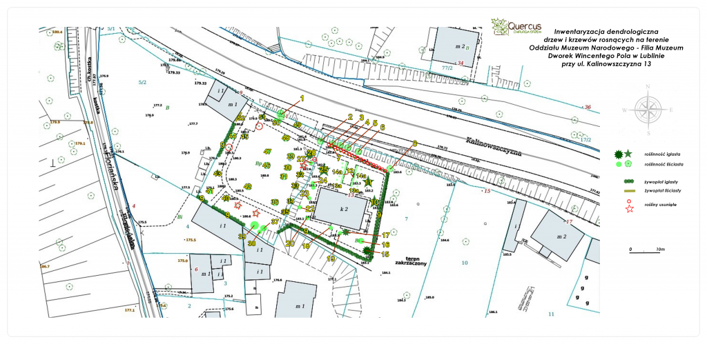
Nasza firma wykonuje inwentaryzacje, rewaloryzacje starych założeń ogrodowych oraz projekty zieleni. Wykonaliśmy m.in. opracowania :
- teren zieleni wokół Zamku Lubelskiego
- ogród wokół dworku Wincentego Pola na Kalinowszczyżnie w Lubline
- Zespół pałacowo-parkowy w Czesławicach
- Zespół dworsko-parkowy w Wierzchowiskach k. Lublina
- Zespół architektoniczno-krajobrazowy Chata Żeromskiego w Nałęczowie (obiekt pod opieką Muzeum Narodowego w Lublinie)
- Muzeum Zamoyskich w Kozłówce
- Zespół dworsko-parkowy w Rybczewicach
- Zespół pałacowo-parkowy w Brzezicach
- ... etc.
Zaufali nam
